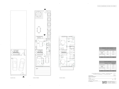
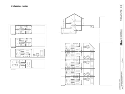
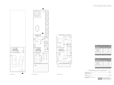
Venda de terreny en Avenida Canovelles Número 33 , Canovelles Barcelona
Ref: 000136
Estat: Bon estat
Superfície: 515 m2
Habitacions: 0
Banys: 0
Característiques
Accés per a minusvàlids
Aire condicionat Moblat Armaris Amb ascensor Balcó Calefacció Exterior Garatge Jardí Pati Piscina Terrassa Traster
300.000 €
(515 m2 - 582,52 €/m2)
Certificat energètic
Consum:
En procés
Emissions:
En procés